APPARTEMENT T4 A LOUER - VILLEURBANNE Gratte-Ciel-Est
120.3 m2 1 450 € charges comprises par mois
APPARTEMENT T4 - GRATTE CIEL
Votre Régie Galyo à le plaisir de proposer à la location, proche des transports en commun, des commerces et de toutes commodités, ce grand T4 de 120.30m²
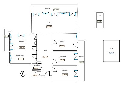
Au 3ème étage d'une copropriété sécurisée située rue Paul Verlaine, il se compose d'une entrée, d'un séjour, d'une cuisine séparée, aménagée et équipée, de 3 chambres, d'une salle d'eau, d'une buanderie et d'un WC séparé.
Le chauffage, l'eau chaude et l'eau froide sont compris dans les charges.
Un balcon ainsi qu'un garage au rez-de-chaussée complètent ce bien.
Zone soumise à encadrement des loyers :
Loyer de référence : 1203 € HC
Loyer de référence majoré : 1443.60 € HC
Conseillère : Eva
Les informations sur les risques auxquels ce bien est exposé sont disponibles sur le site Géorisques : www.georisques.gouv.fr
Réf : 11550
Disponibilité
immédiate
Adresse
36 RUE PAUL VERLAINE, VILLEURBANNE Gratte-Ciel-Est
Caractéristiques
Aménagements
- chauffage : collectif
Informations financières
- loyer mensuel charges comprises : 1 450 €
- dont provision mensuelle des charges locatives : 200 € (régularisation annuelle)
- dépôt de garantie : 1 250 €
- honoraires charge locataire TTC : 1 515 €
- dont pour l'état des lieux : 312 €
Zone soumise à encadrement des loyers
- loyer de base (hors charges) : 1 250 €
Imprimer la ficheVoir nos prestations et tarifsConstituer votre dossier de location en ligne
Conditions sanitaires Téléchargez l'application TousAntiCovid sur Google Play et l'AppStore
Classe énergie et classe climat
dont émissions de Gaz à effet de serre
En savoir plus
Classe énergie et classe climat
Montant estimé des dépenses annuelles d'énergie
Les dépenses d'énergie sont estimées entre 2 010 € et 2 770 € par an selon l'année de référence 2021.
Estimation de dépenses en fonction du logement et pour une utilisation standard sur 5 usages (chauffage, eau chaude sanitaire, climatisation, éclairage, auxiliaires).
L'agence
GALYO
4, rue de la Charité
69002 LYON 2EME ARRONDISSEMENT













